EL NAVÍO MÁS GRANDE DE SU ÉPOCA

Único navío del mundo con cuatro puentes y 140 cañones. Era llamado “El Escorial de los mares”.
Entrada en servicio: 1769 – construido en La Habana.
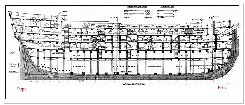
Características:
Eslora: 63,36 m. Manga:16,67 m. Calado: 8,50 m. Puntal: 8,26 m.
Desplazamiento: 4.902 t
Propulsión: A vela.
Armamento en la batalla de Trafalgar:
• 2 cañones de a 36 lb (16,3 kg)
• 34 cañones de a 24 lb (11 kg)
• 36 cañones de a 12 lb (5,4 kg)
• 18 cañones de 8 lb (3,6 kg)
• 16 obuses de 34 lb (15,4 kg)
• 4 obuses de 4 lb (2 kg)



Historial:
1779 España junto a Francia declaró la guerra a Gran Bretaña en apoyo a las colonias norteamericanas en su Guerra de la Independencia. El Santísima Trinidad buque insignia de la flota española tomó parte en las operaciones en el canal de la Mancha.
1780 Participó en la captura de un convoy inglés de 55 buques.
1782 Incorporado a la escuadra del Mediterráneo participó en la batalla del cabo Espartel.
1797 Combate del Cabo de San Vicente, fue desarbolado, y pudo salvarse de ser capturado cuando ya se había rendido gracias a la intervención del navío Infante don Pelayo bajo el mando del capitán de navío Cayetano Valdés, que acudió en auxilio del Santísima Trinidad y consiguió salvarlo de un apresamiento por parte de las fuerzas británicas.

1805 Trafalgar. Llevaba a bordo a 1.159 hombres, de los cuales murieron 205 y 108 heridos en Trafalgar. Lo comandó Baltasar Hidalgo de Cisneros, herido en combate.
Estaba pintado con franjas rojas y negras en vez de amarillas y negras, con la cubierta roja para disimular la sangre en combate.

Combatió contra la mayor parte de la flota enemiga y recibió gran cantidad de impactos en sus cuadernas. Fue capturado y los ingleses intentaron remolcarlo hasta Gibraltar como trofeo, pero finalmente se hundió, debido a sus malas condiciones, a veinticinco millas de Cádiz.